Porzione Indipendente in Vendita a Santa Giustina
€ 198.000
3 Locali
2 Camere
2 Bagni
Multipiano
150 m²
Proponiamo in vendita interessante porzione di abitazione con giardino sita a Formegan di Santa Giustina, zona tranquilla ed al contempo comoda a tutti i principali servizi.
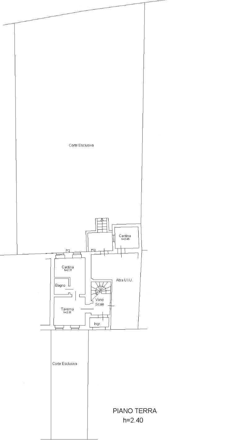
L’immobile ha un doppio accesso sia ad est, sia ad ovest tramite due corti comuni ma mantiene la sua indipendenza grazie a una corte esclusiva frontale dove poter parcheggiare 2 auto ed un piacevole giardino privato sul retro. Gli scoperti esclusivi sono pari a circa 370 m².
La casa é stata oggetto di ristrutturazione alla fine degli anni ’80, inizio ’90 e nel tempo é sempre stata seguita e manutenzionata. Oggi risulta immediatamente abitabile.
Gli spazi sono disposti su 3 livelli e si prestano a diverse interpretazioni secondo le esigenze della famiglia:
PIANO TERRA con ingresso, vano scale, taverna, bagno con doccia, doppia cantina di cui una utilizzata come lavanderia e spazioso garage. Dal garage si accede al giardino sul retro, pianeggiante e con alberi da frutto.
PIANO PRIMO con accesso sul soggiorno collegato alla cucina, camera matrimoniale, camera singola e bagno con vasca. Presenti due terrazzi, uno a sud e uno a nord con bellissima panoramicitá.
PIANO SECONDO soffitta raggiungibile tramite botola con scala retrattile.
La casa presenta riscaldamento autonomo a metano con caldaia a condensazione del 2008. Il riscaldamento é presente anche al piano terra. Inoltre, nella zona giorno troviamo una stube che scalda piacevolmente tutti gli ambienti.
La muratura é in pietra ed il tetto é in buono stato. Gli infissi sono in legno con vetrocamera. APE classe “G”.
Arredi compresi nel prezzo.
Per ulteriori informazioni / visite contatta Obiettivo Immobiliare Belluno.
Caratteristiche
Classe Energetica G
Terrazzo si
Giardino privato 370.00 m²
Box si
Dettagli
3 Locali
2 Camere
2 Bagni
Multipiano
150 m²
Indirizzo
Porzione Indipendente in Vendita a Santa Giustina
-
Categoria: Residenziale
-
Comune: Santa Giustina
-
Tipo di contratto: vendita
-
Tipologia: Porzione Indipendente


























