Appartamento in Vendita a Belluno
€ 98.000
2 Locali
1 Camere
1 Bagni
2° piano
55 m²
**VENDUTO**
GIORNATA DI VISITE GIOVEDI’ 5 MARZO.
Prenota il tuo posto parlando con la Referente Diana.
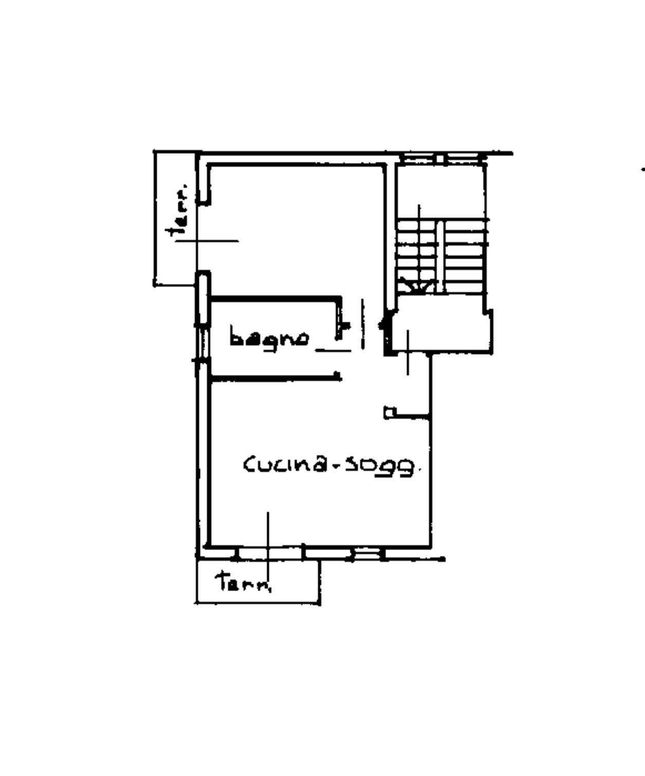
A Belluno, nel quartiere di Cavarzano, in via A. di Foro proponiamo in vendita grazioso bilocale con doppio terrazzo e garage. L’appartamento si trova al secondo piano e mezzo, senza ascensore, di un condominio del 1968 composto da 6 unitá e ristrutturato nel 2000.
Risulta ideale per un single o una giovane coppia oppure come investimento vista l’attuale richiesta di affitti.
Si compone di piccolo ingresso, zona giorno open-space, camera matrimoniale, bagno finestrato con vasca e doppio terrazzo con piacevole vista. Esposizione sud-ovest.
Dimensioni contenute ma sfruttate al massimo. Abitabile da subito.
Nel 2000 sono stati sostituiti i serramenti ed il portoncino d’ingresso, rifatto impianto elettrico, rifatto bagno adeguando l’impianto idraulico. Presente riscaldamento autonomo a metano con caldaia del 2008. Classe energetica F.
Presente garage, utilizzato attualmente come cantina, possibilitá di lasciare l’auto all’esterno secondo accordi fra proprietari e possibilitá di utilizzo di un piccolo orto nella corte comune condominiale.
Spese condominiali pari a circa 600/700€ annui e comprensive di amministratore, assicurazione fabbricato, manutenzione spazi comuni, spurgo fognature, revisione estintori, luce scale.
Tutti gli arredi sono da considerarsi compresi nel prezzo.
Per ulteriori informazioni e visite contatta OBIETTIVO IMMOBILIARE BELLUNO.
Caratteristiche
Classe Energetica F
Anno di costruzione 1968
Terrazzo si
Giardino comune
Box si
Spese condominiali 55 € mensili
Dettagli
2 Locali
1 Camere
1 Bagni
2° piano
55 m²
Indirizzo
Appartamento in Vendita a Belluno
-
Categoria: Residenziale
-
Comune: Belluno
-
Tipo di contratto: vendita
-
Tipologia: Appartamento






















